LS螺旋輸送機也就是U型螺旋輸送機,是GX螺旋輸送機的升級輸送機,螺旋輸送機可分有軸螺旋與無軸螺旋;外殼體、葉片的材質:碳鋼居多,特殊物料采用不鏽鋼;谘詢LS螺旋輸送機價格,需用戶提供參數:如物料名、粒度、物料溫度、輸送量、輸送長度,才好提供用戶價格和報價;LS型螺旋輸送機根據輸送物料顆粒度、輸送量、輸送距離,進行合理選型設計生產,做到不卡料、不架拱、出料順暢。
LS螺旋輸送機的電機驅動可以用直連式,也可以采用鏈條連接式LS型螺旋輸送機是GX型螺旋輸送機的更新換代產品,是散裝粉狀物料的理想輸送設備,它提供的封閉式輸送,能防止粉狀物料溢出、揚塵,也是環保非常實用的環保設備;LS型螺旋輸送機可以從一個或多個入口添加物料,使用非常方便。LS型螺旋輸送機既可以水平輸送物料也可以傾斜輸送物料,當空間允許,這是一個非常經濟的提升輸送設備,但是隨著傾角的增加,處理量會下降。
LS型螺旋輸送機應用領域:
LS型螺旋輸送機適用於細幹粉、小顆粒、或有30%含水量的顆粒物、小塊狀物料等,LS型螺旋輸送機輸送能力大,運輸穩定、不易卡料、輸送均勻、廣泛應用在化工、建材、冶金、礦山、電力等部門;LS型螺旋輸送機不宜輸送黏性物料,如汙泥、生活垃圾等纏繞性的物料。
螺旋輸送機可以輸送炭黑、石墨粉、石灰粉、化肥、石子等
LS型螺旋輸送機工作環境溫度通常為-20~40℃,輸送物料的溫度一般為-20~80℃,LS型螺旋輸送機適宜水平和小傾角布置,傾角以不超過15°為宜,如傾斜角度過大請選用GX係列管式螺旋輸送機,或與我公司技術部門聯係進行單獨設計。
一、LS型螺旋輸送機有七種規格:螺旋直徑:150、200、250、300、400、500、600;
二、十種標準轉數(數/分):20、30、35、45、60、75、90、120、150;
三、螺旋機長度:從3米起到30米止,輸送機長度可自由選擇。
奧創機械專業生產LS型螺旋輸送機,谘詢LS螺旋輸送機價格,需用戶提供參數:如物料名、粒度、物料溫度、輸送量、輸送長度,才好提供用戶價格和報價。
1、如果你是更換舊LS型螺旋輸送機,需要提供法蘭(圓形或方形),法蘭(外徑、內徑、法蘭孔中心距),進出料口距離尺寸,是否有軸或無軸等。如果是新安裝U型螺旋輸送機可以忽略這些參數。
2、需要提供用戶安裝現場工況、物料名稱、物料粒度、物料是否有硬度、物料是否有粘稠度、物料溫度、進出口距離及輸送量等一些參數,奧創機械根據參數為用戶提供合理選型,以達到需求。
LS型螺旋輸送機價格   
LS型螺旋輸送機價格取決於安裝工況、法蘭口徑尺寸大小、進出口距離、輸送量大小、物料溫度、物料顆粒度大小、物料是否有腐蝕性(是否采用不鏽鋼材質)、物料含水量、安裝傾斜角度、輸送長度等參數。爱威奶视频APP最新版下载可以根據用戶的參數來選擇U型螺旋輸送機的殼體,軸等部位的材質(碳鋼或不鏽鋼),材質是影響U型螺旋輸送機價格的因素之一;根據用戶的輸送量來配置電機、減速機功率大小及輸送管的直徑;這兩項是影響U型螺旋輸送機的價格主要因素。
螺旋輸送機材質   
1、殼體:碳鋼為主、其次不鏽鋼、2、螺旋主軸:45號鋼、可做(不鏽鋼)、3、螺旋葉片:碳鋼、可做(不鏽鋼)、4、吊軸承架:鑄鐵、5、兩頭端蓋:碳鋼、可做(不鏽鋼)、6、聯軸器:45號鋼、7、減速機殼體:鑄鐵。8、底座:碳鋼、9、殼體襯板:耐磨板。
LS型螺旋輸送機結構   
驅動部位:三項異步電機或變頻電機;
減速機部位:擺線針輪減速機或齒輪減速機;
聯動部位:直連式聯軸器或鏈輪鏈條;
箱體部位:殼體或加裝襯板、螺旋軸(螺旋葉片)、吊軸承、兩端軸承、進出料口、殼體蓋板等;
底部:底座、支架。
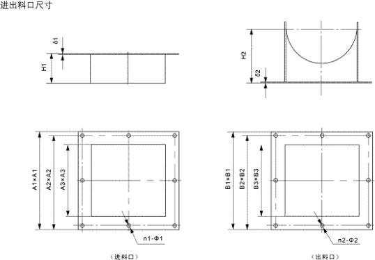
螺旋輸送機可以設計成單個進料口,單個出料口,也可以設計成多個進料或出料口
1、安裝LS型螺旋輸送機之前,現場基礎部位至少提前10天澆灌完成,基礎具備可靠的支撐,保證地基的穩定性,否則時間長,會使地基下沉,U型螺旋輸送機變形,影響工作效率,需要保證螺旋輸送機在運轉時具的穩定性;
2、如LS型螺旋輸送機吊掛在除塵器下麵時,除塵器出塵口灰口上下,左右保持必須平直;
2、安裝以前必須將那些在運輸途中或卸箱是粘上塵垢的機件加以清理;
3、相鄰機殼法蘭麵應鏈接平整、密合、機殼內表麵接頭處錯位偏差不超過2mm;
4、機殼法蘭間允許墊石棉帶,調整機殼和螺旋體長度的積累誤差;
5、LS型螺旋輸送機外徑與機殼間的間隙應符合規定,小間隙不得少於規定的數值的60%,需要大間隙時,按用戶要求製作;
6、LS型螺旋輸送機各中間懸吊軸承應可靠的固定在機殼吊耳上,與相鄰螺旋連接後螺旋轉動均勻,不得有被卡住現象。安裝時可在吊軸承底座與機殼吊耳間加調整墊片,以保證各吊軸承同軸,安裝螺旋體軸線的同軸度規定;
7、LS型螺旋輸送機的各底座在機殼裝妥以後,均應使之著實後再擰地腳螺栓。所有連接螺釘均應擰緊至可靠的程度;
8、LS型螺旋輸送機進出料口現場安裝應使進出料口的法蘭支撐麵與螺旋機的本體的軸線平行,與相連接的法蘭應緊密貼合,不得有間隙;
螺旋輸送機可以分為有軸螺旋和無軸螺旋
9、LS型螺旋輸送機裝妥以後,應檢查各存油處是否有足夠的潤滑油,在進行連續4h以上的無負荷試車以後,應檢查螺旋機裝配的正確性,如果發現不符合下列條件的,應立即停機,矯正後再進行運轉,直至處於良好運行狀態為止;
(1)LS型螺旋輸送機運轉應平穩可靠,緊固件無鬆動現象;
(2)LS型螺旋輸送機運轉2h後,軸承升溫不大於30度,潤滑密封良好;
(3)LS型螺旋輸送機減速器無滲油,無異常聲,電路設備,聯軸器安全可靠;
(4)LS型螺旋輸送機空載運行時功率不應超過額定功率的30%;
(5)除塵器在負壓下運行螺旋輸送機各連接處無明顯漏風。
LS型螺旋輸送機運行注意事項   
1、LS型螺旋輸送機在開車前應認真檢查機槽內有無剩餘粉塵和雜物,若有,則應及時清理幹淨。此外還應檢修進出口是否暢通,如發現有堵塞現象,請及時清理幹淨;
2、加料必須均勻,並保持一定的裝滿程度;
3、進料口應加篩網,嚴防金屬雜物落入機槽後卡在機槽與螺旋軸之間,從而引起螺旋軸扭彎或驅動裝置損壞;
4、機槽和機槽蓋一定要注意嚴密,以防粉塵外溢,影響操作環境;
5、停機前,應盡可能卸淨機體內的物料,以保證設備下一次啟動時能處於空載運行狀態;
6、當運行中途停機時,應盡可能卸淨機體內的物料未能及時排淨,此時若再次啟動出現困難時,需要將機體內的物料取出後才能啟動運行;
7、定期檢查螺旋葉片的磨損情況,當發現磨損嚴重時可采用補焊或更換新件。此外還應經常檢查軸承的磨損情況,發現問題及時更換;
8、輸送機的各潤滑部位應嚴格按要求進行潤滑,並經常保持輸送機內部軸承的潤滑油充足和定期更換;
9、LS型螺旋輸送機在運轉過程中,一旦發出刺耳的噪音時,應及時排查;
10、LS型螺旋輸送機兩頭軸承要嚴格密封,防止粉塵卡軸現象;
11、密切注意監視超過允許的溫度,大塊及含水量的物料進入機體,以防止損壞設備。
LS型螺旋輸送機技術參數:
| 規格型號 | 100 | 160 | 200 | 250 | 315 | 400 | 500 | 630 | 800 | 1000 | 1250 | 
| 螺旋直徑(mm) | 100 | 160 | 200 | 250 | 315 | 400 | 500 | 630 | 800 | 1000 | 1250 | 
| 螺距(mm) | 100 | 160 | 200 | 250 | 250 | 355 | 400 | 450 | 500 | 560 | 630 | 
| 轉速(r/min) | 140 | 112 | 100 | 90 | 80 | 71 | 63 | 50 | 40 | 32 | 25 | 
| 輸送量(m3/h) | 2.2 | 7 | 13 | 22 | 31 | 62 | 98 | 140 | 200 | 280 | 380 | 
| 轉速(r/min) | 112 | 90 | 80 | 71 | 63 | 56 | 50 | 40 | 32 | 25 | 20 | 
| 輸送量(m3/h) | 1.7 | 6 | 10 | 18 | 24 | 49 | 78 | 112 | 160 | 220 | 306 | 
| 轉速(r/min) | 90 | 71 | 63 | 56 | 50 | 45 | 40 | 32 | 25 | 20 | 16 | 
| 輸送量(m3/h) | 1.4 | 5 | 8 | 14 | 19 | 39 | 62 | 90 | 126 | 176 | 245 | 
| 轉速(r/min) | 71 | 50 | 50 | 45 | 40 | 36 | 32 | 25 | 20 | 16 | 13 | 
| 輸送量(m3/h) | 1.1 | 3.1 | 6.2 | 11 | 15.4 | 31 | 50 | 77 | 102 | 140 | 198 | 
| 規格型號 | F | E | W | L | L1 | L3 | G | L | Q | Y | N | 
| LS100 | 2500 | 2500 | 2500 | 2480 | 250 | 2640 | 15002000
 2500
 | 5002000
 2500
 | 180 | 180 | 63 | 
| LS160 | 2500 | 2500 | 2500 | 2480 | 2500 | 2640 | 200 | 180 | 90 | 
| LS200 | 2500 | 2500 | 2500 | 2480 | 2500 | 2640 | 225 | 180 | 112 | 
| LS250 | 3000 | 3000 | 3000 | 2980 | 3000 | 3140 | 250 | 200 | 140 | 
| LS315 | 3000 | 3000 | 3000 | 2980 | 3000 | 3140 | 330 | 220 | 180 | 
| LS400 | 3000 | 3000 | 3000 | 2980 | 300 | 3140 | 350 | 227 | 224 | 
| LS500 | 3000 | 3000 | 3000 | 3000 | 3000 | 3160 | 20002500
 3500
 | 20002500
 3500
 | 400 | 250 | 280 | 
| LS630 | 3000 | 3000 | 3000 | 3000 | 3000 | 3160 | 450 | 300 | 355 | 
| LS800 | 3000 | 3000 | 3000 | 3000 | 3000 | 3160 | 550 | 340 | 450 | 
| LS1000 | 3000 | 3000 | 3000 | 3000 | 3000 | 3160 | 650 | 360 | 560 | 
| LS1250 | 3000 | 3000 | 3000 | 3000 | 3000 | 3160 | 800 | 380 | 710 | 
| 規格型號 | K | R | S | Z | O | H | V | J | P | T |   | 
| LS100 | 112 | 180 | 112 | 40 | 178 | 120 | 160 | 14 | 60 | 163 |   | 
| LS160 | 150 | 200 | 150 | 50 | 266 | 120 | 160 | 14 | 60 | 190 |   | 
| LS200 | 180 | 225 | 180 | 60 | 320 | 160 | 200 | 14 | 60 | 212 |   | 
| LS250 | 224 | 250 | 224 | 70 | 370 | 200 | 250 | 16 | 60 | 240 |   | 
| LS315 | 280 | 390 | 250 | 80 | 443 | 300 | 350 | 20 | 60 | 340 |   | 
| LS400 | 355 | 390 | 280 | 90 | 533 | 320 | 400 | 24 | 60 | 384 |   | 
| LS500 | 400 | 400 | 340 | 105 | 653 | 400 | 500 | 24 | 80 | 440 |   | 
| LS630 | 500 | 450 | 420 | 120 | 790 | 500 | 630 | 24 | 80 | 555 |   | 
| LS800 | 630 | 550 | 520 | 135 | 970 | 632 | 800 | 30 | 80 | 650 |   | 
| LS1000 | 710 | 650 | 630 | 150 | 1190 | 710 | 1000 | 30 | 80 | 760 |   | 
| LS1250 | 800 | 800 | 760 | 170 | 1440 | 800 | 1250 | 30 | 80 | 910 | 
 | 
LS螺旋輸送機尺寸圖: